| Prijs | € 310.000,- k.k. |
| Type object | Woonhuis, eengezinswoning, tussenwoning |
| Perceeloppervlakte | 131 m² |
| Woonoppervlakte | 123 m² |
| Aanvaarding | Direct |
| Status | Verkocht onder voorbehoud |
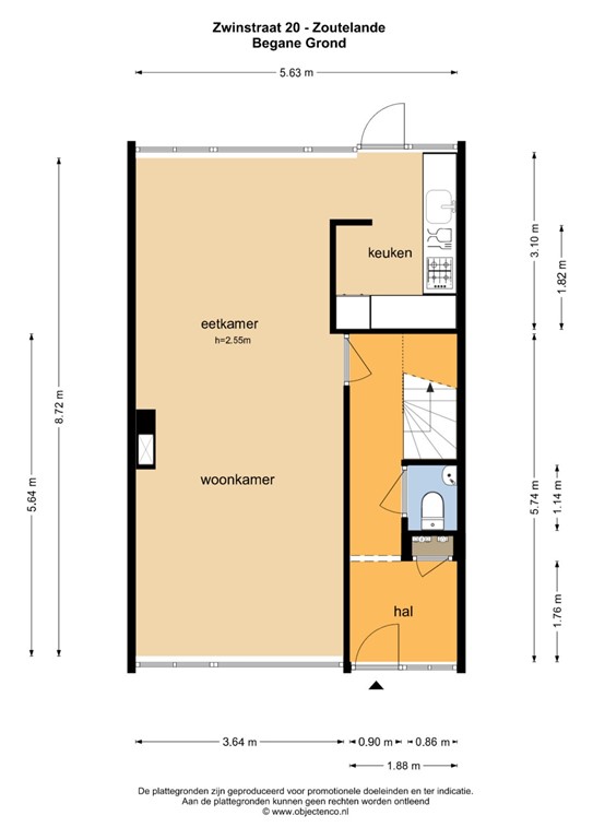
Ruime woning op een mooie locatie in het centrum van Zoutelande Voor wie een rustig gelegen woning zoekt in een fijne buurt, is dit huis een prima optie. Voor de woning een leuk parkje met speeltoestellen. Heel veel groen. En heerlijk rustig. De woning heeft vier slaapkamers. Ideale gezinswoning. Alle basisvoorzieningen zijn dichtbij. Denk daarbij aan scholen, winkels en sportvoorzieningen. En niet te vergeten de prachtige zuid stranden en een mooi duingebied. Waar u van heerlijke wandelingen kunt genieten. Bijzonderheden: Per direct te aanvaarden. Indeling woning: Begane grond, aan de voorzijde een entree. In de hal trap naar eerste etage en toilet. Vanuit de hal komt u in de woonkamer met half openkeuken. Vanuit de keuken toegang tot de tuin. Eerste etage, overloop met drie slaapkamers. Badkamer met ligbad (douche in ligbad), wastafel en toilet. Tweede etage, ruime zolder en vierde slaapkamer. Hier hangt de combiketel. Hier is ook een aparte ruimte met aansluiting voor wasmachine en droger. Kortom een leuke en ruime woning met berging op een mooie locatie. Interesse? Neem contact op voor een geheel vrijblijvende bezichtiging. Ook wanneer u, uw eigen woning wilt verkopen, helpen wij u graag!
| Referentienummer | 06239 |
| Vraagprijs | € 310.000,- k.k. |
| Inrichting | Niet gestoffeerd |
| Inrichting | Niet gemeubileerd |
| Status | Verkocht onder voorbehoud |
| Aanvaarding | Direct |
| Aangeboden sinds | Donderdag 13 november 2025 |
| Laatste wijziging | Maandag 15 december 2025 |
| Type object | Woonhuis, eengezinswoning, tussenwoning |
| Soort bouw | Bestaande bouw |
| Bouwperiode | 1978 |
| Dakbedekking | Dakpannen |
| Type dak | Zadeldak |
| Isolatievormen | Grotendeels dubbel glas Spouwmuren |
| Perceeloppervlakte | 131 m² |
| Woonoppervlakte | 123 m² |
| Inhoud | 420 m³ |
| Oppervlakte externe bergruimte | 8 m² |
| Aantal bouwlagen | 3 |
| Aantal kamers | 5 (waarvan 4 slaapkamers) |
| Aantal badkamers | 1 (en 1 apart toilet) |
| Type | Voortuin |
| Oriëntering | Noord west |
| Staat | Normaal |
| Tuin 2 - Type | Achtertuin |
| Tuin 2 - Hoofdtuin | Ja |
| Tuin 2 - Oriëntering | Zuidoost |
| Tuin 2 - Heeft een achterom | Ja |
| Tuin 2 - Staat | Normaal |
| Warmtebron | Gas |
| Combiketel | Ja |
| Eigendom | Eigendom |
| Warm water | CV-ketel |
| Verwarmingssysteem | Centrale verwarming |
| Badkamervoorzieningen | Ligbad Toilet Wastafel |
| Tuin aanwezig | Ja |
| Heeft schuur/berging | Ja |
| Kadastrale aanduiding | Valkenisse D 1390 |
| Perceeloppervlakte | 131 m² |
| Omvang | Geheel perceel |
| Eigendomsituatie | Eigen grond |