Beschrijving
Te koop in Vlissingen; Bouwkavel met vergunning voor het bouwen van een vrijstaand woonhuis met kantoor.
De kavel is gelegen op het Edisonpark in Vlissingen: een centraal gelegen wijk, waar wonen en werken gecombineerd kan worden. Het Edisonpark is een parkachtige omgeving aan het Kanaal door Walcheren, met hoogwaardige en grote woon/werkvilla's, en is inmiddels een mooie mengelmoes van ondernemers.
In het kort:
- Bouwkavel met vergunning voor bouwen vrijstaande (bedrijfs)woning.
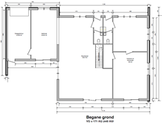
- Woonhuis wat u hier kunt realiseren heeft 268 m2 GBO (incl. garage) en een inhoud van 697 m3
- Perceel: 592 m²
- Vraagprijs: € 135.000,- k.k. en exclusief BTW is alleen voor het bouwkavel.
De vraagprijs van € 550.000,- k.k. excl. BTW is een richtprijs voor kavel en opstal. Wanneer u interesse heeft gaan wij graag met u in gesprek om tot een definitieve prijs te komen voor het bouwen van de woning. Want dit is namelijk sterk afhankelijk van u wensen. Ook kan er nog veel gewijzigd worden op basis van uw wensen.
Aan de gehanteerde richtprijs kunnen dus ook geen rechten verbonden worden.
Vlissingen:
Vlissingen vormt samen met Middelburg het stadsgewest Vlissingen-Middelburg. Dit stadsgewest fungeert als de economische motor van Zeeland. Vlissingen is een maritieme gemeente, gelegen aan de monding van de Westerschelde in de Noordzee. Grote schepen varen er dagelijks vlak langs de boulevards. Op enige afstand van de stad bevindt zich het bedrijven-en havengebied Vlissingen-Terneuzen, één van de grootste havens van Nederland. Vlissingen behoort tot het derde zeehavengebied en de tweede loodsenregio van Nederland. In Vlissingen vindt u befaamde bouwers van marineschepen en megajachten, de derde vismijn van Nederland, maritiem onderwijs , maritiem erfgoed en ander bedrijven, instellingen en activiteiten die het maritieme karakter van de stad benadrukken.
Locatie en bereikbaarheid:
De villa is gelegen op het Edisonpark in Vlissingen: een centraal gelegen wijk, waar wonen en werken gecombineerd kan worden. Het Edisonpark is een parkachtige omgeving aan het Kanaal door Walcheren, met hoogwaardige en grote woon/werkvilla's, en is inmiddels een mooie mengelmoes van ondernemers. In de directe omgeving zijn gerenommeerde bedrijven gehuisvest, maar ook de Hogeschool Zeeland, Scalda, TW en bedrijfsverzamelgebouw Dockwize waardoor dit gebied met recht bestempeld is tot de 'Kenniswerf' van Zeeland.
Het Edisonpark ligt vlakbij de A58 en is onderdeel van de entree van de stad. Dit gebied is volop in ontwikkeling met de realisatie van de 'nieuwe entree' van Vlissingen en de komende ontwikkelingen, zoals het nieuwe bedrijventerrein Buitenhaven-West, het nieuw stationsplein en het nieuwe woongebied Scheldekwartier. Binnen een minuut bent u op de A58 of de treinstations Oost-Souburg en Vlissingen.
Bestemming:
Het onderhavige ligt binnen het vigerende bestemmingsplan 'Stedelijke Bedrijventerreinen Vlissingen' vastgesteld op 22 juli 2010 en heeft de bestemming 'Bedrijf-2'. De voor 'Bedrijf-2' aangewezen gronden zijn onder andere bestemd voor:
a. bedrijven, voor zover deze voorkomen in de categorieën 1, 2 en 3.1 van de Staat van Bedrijfsactiviteiten 'Deelgebied Edisonpark';
b. woningen, al dan niet in combinatie met een aan huisverbonden beroeps- of bedrijfsactiviteit, en uitsluitend in combinatie met een bedrijf als bedoeld onder a, mits het bedrijfsvloeroppervlak tenminste 30% van de bebouwing omvat;
Voor een uitgebreide omschrijving verwijzen wij u naar de bestemmingsplanbepalingen.
Kadastrale gegevens:
Gemeente Vlissingen, sectie K, perceelnummer 1010 (17 m²), 1192 (575) ; totaal: 592 m²
Bodeminformatie:
Bij de totstandkoming van het bestemmingsplan heeft er een bodemonderzoek plaatsgevonden en is het terrein waarvan het verkochte deel uitmaakt geschikt bevonden voor het hiervoor omschreven gebruik.
Zekerheidstelling:
Koper dient een garantie ter grootte van 10% van de koopsom binnen 14 dagen na ondertekening van de koopovereenkomst bij de notaris te storten
Staat van oplevering:
Het geheel wordt te zijner tijd in de staat waarin het zich dan bevindt (as is, where is) geleverd.
Milieu/ondergrondse tank(s):
Verkoper geeft geen enkele garantie ten aanzien van de milieukundige toestand van de registergoederen. Evenmin vrijwaart verkoper koper jegens (mogelijke) claims en aansprakelijkheden van derden, welke (zullen) voortvloeien uit of betrekking hebben op de milieukundige toestand van de registergoederen en/of de omgeving.
Algemeen:
Deze informatie is met zorg samengesteld. Voor de juistheid daarvan kan echter geen aansprakelijkheid worden aanvaard, noch kan aan de vermelde gegevens enig recht worden ontleend. Alle opgegeven afmetingen zijn indicatief. Deze informatie dient slechts als uitnodiging om in onderhandeling te treden en kan derhalve niet kan worden beschouwd als een aanbod of offerte.