Beschrijving
Ruime tussenwoning met tuin op het zuiden
Goed onderhouden tussenwoning rondom voorzien van kunststof kozijnen met nieuw sanitair en net keukenblok. Daarnaast voorzien van zonnepanelen. Instap klare woning met een laag energieverbruik.
De woning is aan de voorzijde gelegen aan een plantsoen met parkeervakken. Hierdoor een zeer vrije ligging met een prachtig uitzicht. En veel parkeergelegenheid.
De woning ligt aan de rand van Westkapelle, maar met de duinen, strand en zee op loopafstand evenals de aanwezige winkels. De steden Middelburg en Vlissingen zijn dichtbij, ongeveer 15 tot 20 minuten met de auto.
Deze woning heeft verder een mooi aangelegde tuin op het zuiden met een ruime houten berging.
De ruimte en indeling van de woning zal u bij een bezichtiging verbazen.
Indeling woning:
Begane grond, ruime hal met meterkast en trap naar eerste verdieping en deur naar de keuken. Ruime doorzon woonkamer en een gesloten keuken met net keukenblok. Achter de keuken een ruime bijkeuken met toilet.
Indeling eerste verdieping:
Overloop met deuren naar drie ruime slaapkamers. Verder een badkamer met een douche met wastafel en op de overloop nog een apart toilet.
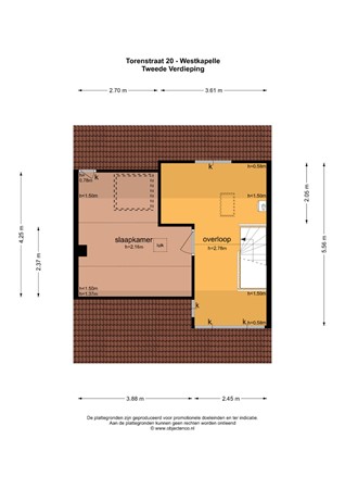
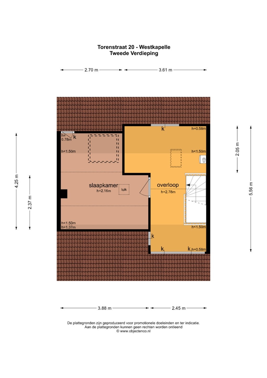
Indeling tweede verdieping:
Ruime overloop met plaats voor de cv-ketel en ruimte voor een bureau en is er een deur die toegang geeft tot nog een ruime, vierde slaapkamer.
Kortom een ruime en nette woning met vele mogelijkheden. Maak snel een afspraak voor een bezichtiging.